• 宅男视频APP下载,宅男视频在线观看,宅男深夜小视频,宅男视频软件下载APP

    欢迎您访问济南宅男视频APP下载机械设备有限公司网站!
    济南宅男视频APP下载机械设备有限公司 宅男视频在线观看推荐供应商 工程建筑业重要合作伙伴
    联系宅男视频APP下载 / Contact us
    宅男视频APP下载宅男视频在线观看厂家

    济南宅男视频APP下载机械设备有限公司

    宅男视频在线观看咨询电话

    139-6901-8855

    联系电话:0531-88277233

    公司网址:www.jinbo127.com

    联系地址:山东省济南市天桥区桑梓店镇梓东大道299号鑫茂齐鲁科技城133号楼102号

    • 宅男视频在线观看连接技术在核电工程中的应用

      宅男视频在线观看 连接技术已经在工业、民用、道路、桥梁、水工建筑、海洋工程、核电工程等领域广泛应用。本文介绍了常用的钢筋连接套筒......

      TIME:2018-10-27
    • 宅男视频在线观看连接浅谈

      伴随着钢结构及钢构件和混凝土组合建筑物日益增多的今天,钢筋和型钢构件稳定连接也成为结构安全性的重要指标,其连接方式有很多......

      TIME:2018-10-22
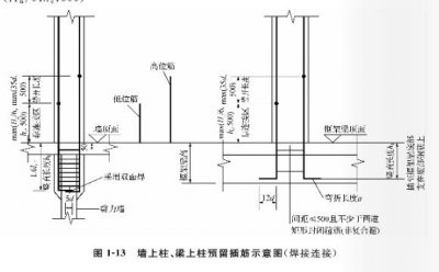
    • 墙上柱、梁上柱非钢筋连接套筒区长度规定

      墙上柱、梁上柱非 钢筋连接套筒 区长度规定 (1)规范的一般规定 1)墙上柱、梁上柱的柱下端非连接区为Hu/6、Hc或5......

      TIME:2018-08-21
    • 宅男视频在线观看插筋预留非连接区长度规范要求

      今天为大家分享宅男视频在线观看插筋预留非连接区长度规范要求: 1.基础顶面非连接区长度规定 规范的一般规定 甚础顶面柱下端非连接......

      TIME:2018-08-17
    • 合肥滨湖一工地发生作业事故 3名工人死亡

      5月24日,安徽省安全生产监督管理局发布消息:2018年5月24日8时25分,合肥市滨湖新区西藏路与贵阳路交口东200米......

      TIME:2018-07-27
    • 宅男视频在线观看是什么,怎样使用?

      一些工地上都会频繁的用到它来稳固楼房。可是有的钢筋长有的短,应该怎么将它们连接到一起呢?这就要归功于宅男视频在线观看了。使用滚丝......

      TIME:2018-07-20
    • 宅男视频在线观看中被经常使用的直螺纹套筒是如何施工

      当前环境下直螺纹套筒因为其强大的性能优势而被广泛应用在各大工建场地,之前的旧的钢筋连接方式几乎已经看不到了,那么关于钢筋......

      TIME:2018-07-16
    • 钢筋连接套筒在济南四建的工地大放光彩

      济南四建有限责任公司与济南宅男视频APP下载机械设备有限公司合作了钢筋连接套筒和钢筋滚丝机,宅男视频APP下载的设备和产品获得了建筑工人的一致认可和......

      TIME:2018-07-07
    • 钢筋连接套筒独特的应用和主要优势

      钢筋连接套筒由于底辊压成型钢结构,钢筋由热处理器木材量,肋钢筋强度战争个别提到的,满意的肋骨底部直径小于基圆直径钢基体材......

      TIME:2018-06-12
    • 钢筋直螺纹套筒的连接和冷挤压套管的区别

      钢筋直螺纹套筒的了解就是将待连接钢筋端部的纵肋和横肋用滚丝机采用切削的方法剥掉一部分,然后直接滚轧成普通直螺纹,用 的直......

      TIME:2018-05-30
    • 钢筋直螺纹套筒连接接头的分类特点

      钢筋直螺纹套筒 主要有镦粗直螺纹连接接头和滚压直螺纹连接接头。这两种工艺采用不同的加工方式,增强钢筋端头螺纹的承载能力,......

      TIME:2018-05-29
    • 钢筋直螺纹套筒连接制作与抗拉强度测定

      钢筋机械连接方式之一的直螺纹套筒连接,目前在工程中已经普遍应用。根据多年工作经验,从 钢筋直螺纹套筒 连接件的制作和工艺......

      TIME:2018-05-28
    网站地图