• 宅男视频APP下载,宅男视频在线观看,宅男深夜小视频,宅男视频软件下载APP

    欢迎您访问济南宅男视频APP下载机械设备有限公司网站!
    济南宅男视频APP下载机械设备有限公司 宅男视频在线观看推荐供应商 工程建筑业重要合作伙伴
    当前位置:网站首页>公司宅男视频软件下载APP>行业资讯>墙上柱、梁上柱非钢筋连接套筒区长度规定

    墙上柱、梁上柱非钢筋连接套筒区长度规定

    文章来源:直螺纹套筒 作者:宅男视频在线观看 发布时间: 浏览次数0

      墙上柱、梁上柱非钢筋连接套筒区长度规定

      (1)规范的一般规定

      1)墙上柱、梁上柱的柱下端非连接区为Hu/6、Hc或500mm的”三控值",应在三个控制值中取 大者,其中Hu为柱的净高,Hc为柱截面的较大值。

      2)柱纵筋可在除非钢筋连接套筒区外的柱身任意位置连接。

      3)优先采用绑扎连接或机械连接。

      4)当钢筋直径>28mm时不宜采用绑扎连接,应采用宅男视频在线观看连接。

      5)当某层连接区的高度小于纵筋分两批搭接所需要的高度时,不得采用绑扎连接,应采用机械连接或套筒连接。

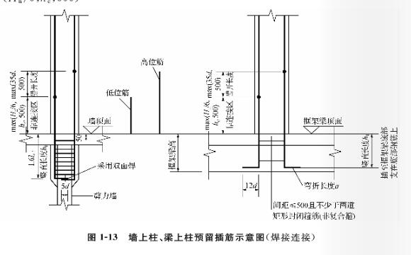
      (2)墙上柱、梁上柱采用焊接连接形式时的要求

      墙上柱、梁上柱的柱下端非连接区为“三控值”柱纵筋相邻接头错开长度大于等于35d且不得小于500mm,如图所示。

    墙上柱、梁上柱非钢筋连接套筒区长度规定

      墙上柱、梁上柱插筋(低位筋)长度=弯折长度a十竖直长度h1,+max(Hn/6,h,500)

      墙上柱、梁上柱插筋(高位筋)长度=弯折长度a十竖直长度h1,+max(Hn/6,h,500)+max(35d,500)

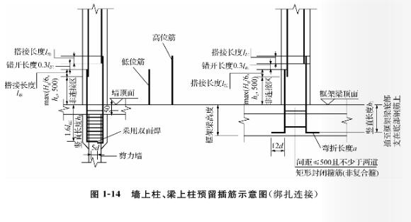
      (3)墙上柱、梁上柱采用绑扎连接形式时的要求

      墙上柱、梁上柱的柱下端非连接区为“三控值”,柱纵筋相邻接头错开长度大于等于0.3/E,如图所示。

    预留插筋示意图

      墙上柱、梁上柱插筋(低位筋)长度=弯折长度a十竖直长度h1,1+max(Hn/6,h,500)十l1E

      墙上柱、梁上柱插筋(高位筋)长度=弯折长度a十竖直长度h1,1+max(Hn/6,h,500)+2.3l1E

      以上就是关于墙上柱、梁上柱非钢筋连接套筒区长度规定,更多讯息请访问官网。


    相关文章:钢筋连接套筒

    网站地图